17.代涵 17环境艺术设计(专科班)

作品名称:挖掘机户型北欧风格设计家居
指导老师:肖波




设计说明:
北欧风格装修的一个特色就是黑白灰色系的使用,便于与各种色彩色调相搭配,能够带来一种“极简主义”的现代风格。令人舒适的空间没有过多的装饰表现,大面积留白的墙为的是一份撒入室内的阳光及那还在追逐的梦想!
18.王国艳 17环境艺术设计(专科班)
设计主题: 北欧风家居设计
指导老师:杨军




设计说明:
本方案在设计上追求功能与形式完美统一,优雅独特,简洁明快,布局合理。针对这一主题,设计上以协调各功能空间的使用要求为目的布局上求合理。功能上力求完备,动线计划上争取做到畅通合理,满足功能要求,同时又给人以艺术之美感。
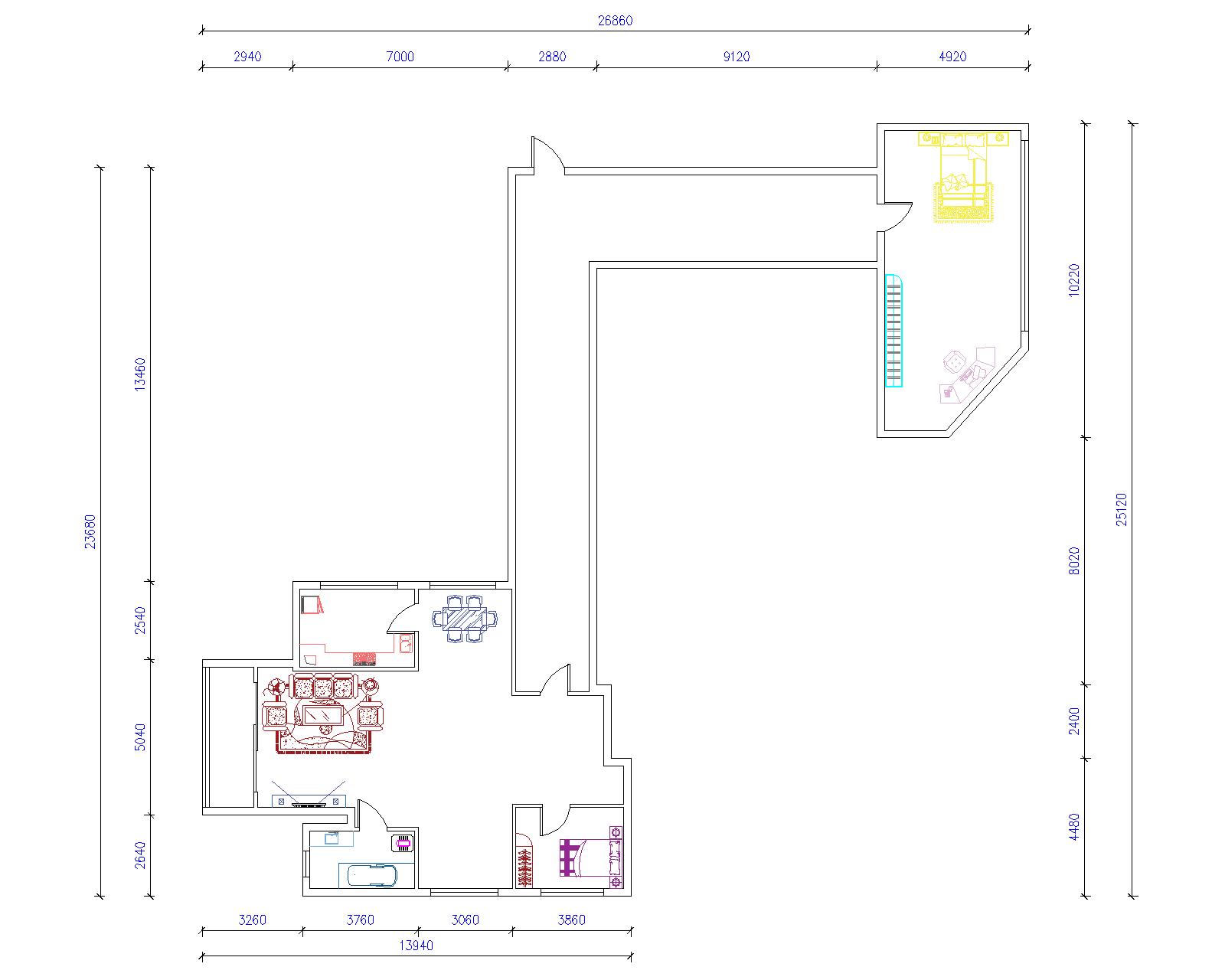
19.黄仁祥 17环境艺术设计(专科班)
作品名称:水木城
指导老师:肖波




设计说明:
简约中求艺术,化繁为简,合理的简化居室,从简单舒适中体现生活的精致,该作品展示了两室一厅的平面布置图,都是本着简约实用而设计。这种装修风格没有过多的装饰,一切以功能出发,强调空间结构图明确美观,外观明快、简洁,非常适合现在的年轻人。
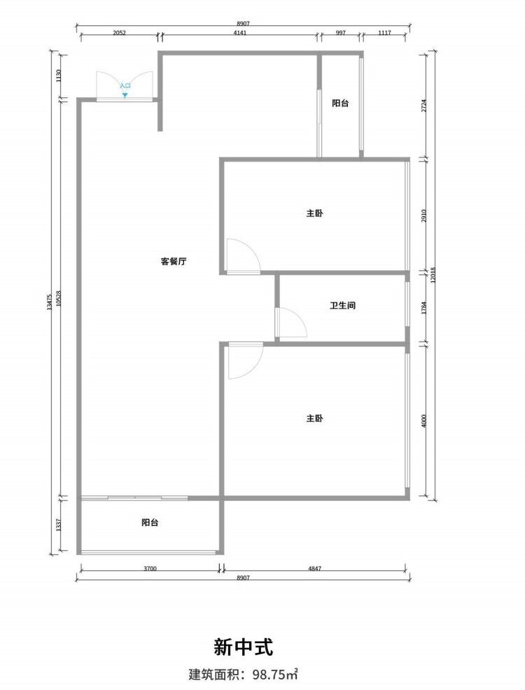
20.苏强慧 17环境艺术设计(专科班)
设计作品:新中式----悠然之境
指导教师:肖波

x




设计说明:
“新中式”风格,以传统文化为背景,在展现浓浓东方之美的同时,继承明清时期家居理念的精华,将其中的经典元素提炼并加以丰富。以现代人的审美需求来打造传统韵味的事物,让传统艺术在当今社会得到合适的体现。
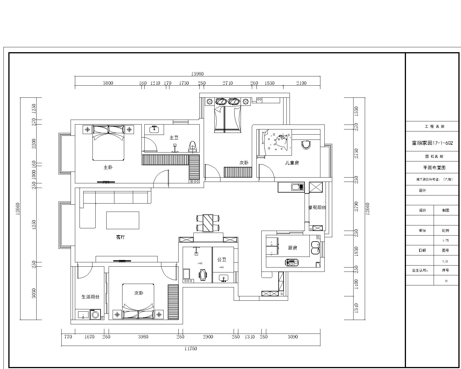
21.刘志芳17环境艺术设计(专科班)

作品风格:现代简约风格
指导老师:肖波




设计说明:
本案是一套三室两厅一厨两卫的居室。现代简约风格设计定位:家是心灵的港湾——“简约但并不简单的装饰风格”。当疲惫的身心对家的依恋越发的强烈,人们想要的轻松、自由的环境,“现代简约风格”自然就成为家居设计的一种风尚。
22.杨正群 17环境艺术设计(专科班)
设计作品:现代简约风格的室内空间创作
指导老师:杨军




设计说明:
本方案为面积73平米的简约小户型,适合一家三口居住,主要以冷色调为主,倾向于简约且功能性较强的装修风格。以简约的表现形式来满足人们对于简约却不简单的居室环境要求,这样的设计风格没有过多的装饰物,主要以简单的线条和装饰简洁的造型来体现出现代简约型的设计,采用留白的设计来营造出空间中的个性与宁静。
23.王明海 17环境艺术设计(专科班)
作品风格:现代简约风格
指导教师:肖波




设计说明:
本案为四房一厅二卫一厨的住宅,环境优美为一四口之家依据进行设计,突出温馨且不失时尚质感。整体十分淡雅,这里没有多余的色彩布置和家具没有喧嚣与繁冗。设计将原来不规则且略显零乱的空间简化整合。
24.王泽东 17环境艺术设计(专科班)

作品风格:室内中式设计风格
指导教师:肖波





设计说明:
中式设计风格渗透了东方华夏几千年的文明,中式设计风格营造的是极富中国浪漫情调的生活空间。设计中运用红木、青花瓷、紫砂茶壶以及一些红木工艺品等都体现了浓郁的东方之美,这正是中式风格与其它风格所不同的地方。